Your privacy is important to us. This website uses cookies to enhance user experience and to analyze performance and traffic on our website. By using this website, you acknowledge the real-time collection, storage, use, and disclosure of information on your device or provided by you (such as mouse movements and clicks). We may disclose such information about your use of our website with our social media, advertising and analytics partners. Visit our Privacy Policy and California Privacy Disclosure for more information on such sharing.

Log In

Our Brands

Helpful Tools

Search

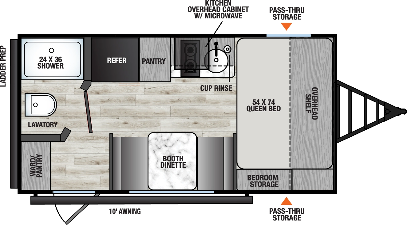
Hitch Weight
375 lb.
GVWR
3,875 lb.
UVW
2,943 lb.
CCC
932 lb.
Exterior Length
18' 6"
Exterior Height
10' 0"
Exterior Width
84"
Fresh Water
27 gal.
Gray Water
25 gal.
Black Water
25 gal.
Awning Size
10'

16FB Floorplan 3K Series Features & Options

    • QUALITY & APPLIANCE PACKAGE:
    • 10 Cu. Ft. GE 12V Refrigerator (3.3 Cu. Ft. on 12RD & 12BH)
    • 13.5K GE Roof-Mounted A/C (N/A on 12RD & 12BH)
    • Stainless GE Microwave
    • Stainless GE 2-Burner Cooktop with Range Vent
    • 20K BTU Furnace
    • Tankless On-Demand Water Heater
    • Electric Brakes
    • Easy Lube Axles
    • BAL NXG Frame with Supreme Powder Coating & HUCK Bolt Assembly
    • 5/8" Tongue and Groove Plywood Flooring
    • Drop Edge Thermofoil Countertops
    • Seamless One-Piece TPO Roof Membrane
    • CAMPING MADE EASY PACKAGE:
    • Solid Entry Steps
    • Black Tank Flush
    • Battery Disconnect
    • Power Awning w/ LED Strip and Adjustable Legs
    • Foot Flush Toilet
    • Back-up Camera Prep
    • Magnetic Baggage Door Latches
    • Smooth Metal Front
    • Solar Prep
    • USB Charging Ports
    • Cable TV Hook-Up
    • Friction-Hinge Door
    • Kitchen Sink Cup Rinser
    • LCI Ladder Prep
    • Vent in Bathroom
    • OPTIONS:
    • Power Tongue Jack
    • Spare Tire + Carrier (N/A on 12s)
    • 7.0 Cu Ft 2-Way Refer IPO 10 Cu Ft 12V Refer
    • Solar Package (200W Panel w/ 30 AMP Solar Controller)
    • 15K AC IPO 13.5K
    • All-Terrain Tires